人居产品升级下的市场新宠(下)
徐辉设计

在 研发专题丨四代住宅:人居产品升级下的市场新宠(上) 点击阅读 一文中,我们剖析了四代住宅成为市场新宠的底层逻辑:从政策端的高品质住宅建设需求、市场端的产品差异化竞争缺口,到用户端对健康、生态、社交功能的渴求,共同构成四代住宅这一产品形态大热的必然性;也探讨了四代住宅在落地过程中的核心矛盾应对:空中庭院与建筑结构的力学博弈、生态空间与居住隐私的平衡难题、增量成本与溢价能力的价值对赌……
这些挑战既是四代住宅产品更新迭代的“试金石”,也为创新者提供了破局的切口。本篇将视角转向“实战战场”,以实践案例为切片,拆解设计牵引下四代及类四代产品在功能复合、场景营造、溢价空间等维度的价值创造。

相较于常规住宅的平面景观布局,四代住宅通过垂直绿化系统与社区景观的有机融合,构建出多维度生态空间。
绿意自地面向建筑立面攀援生长,形成立体的自然织网,既延伸了生态廊道的连续性,又为居住者营造出沉浸式自然界面。规划设计则在这一优势之上,进一步提高项目的居住体验。
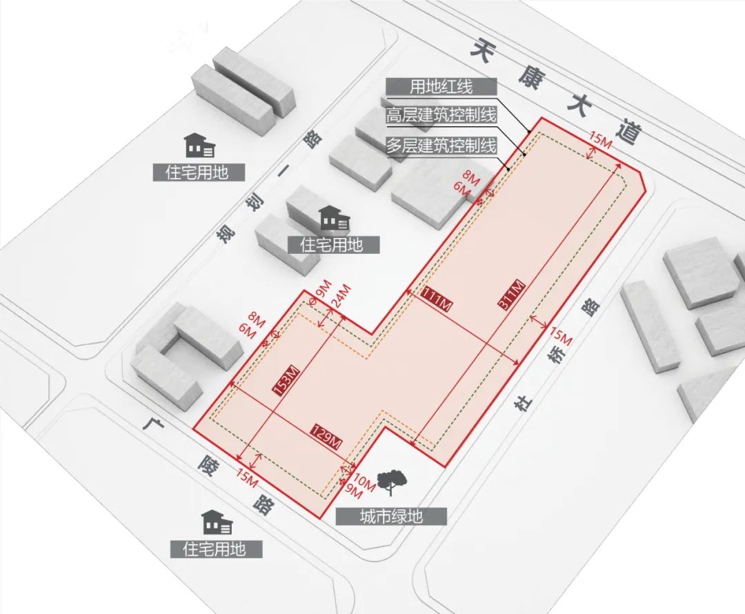
以龙记未来城市森林(已建成丨安徽滁州,设计时间:2021年)为例,该项目基地狭长而不规则,且当地技术条件对户型面宽最大化的实现也有限制,普通的规划策略既无法满足四代住宅的超大面宽需求,也无法提高基地利用率和居住体验。

△ 项目基地情况
设计通过板点结合、错位布置的策略,形成空间的流动,增加居住私密性的同时,将产品面宽做到极致,形成超大景观视野,有效地提升了地块整体价值。

错位布置也在楼宇间形成新的围合空间,彼此渗透流动、对景互借。“地面绿化+层间绿化”的多维景观结构,使空中庭院与社区景观有机结合,塑造与常规住宅不同的多维度复合景观体系。

△ 多维景观结构
在项目基地具有较好的外部景观条件时,对外借景、对内造景是规划的核心策略。以鑫联水岸云墅(建设中丨河南南阳,设计时间:2024年)为例,项目择址白河河畔,先天坐拥优越的河景资源。

设计充分挖掘地块特质,将楼宇在东西向形成错位,同时将楼栋向西侧白河景观界面扭转,在楼宇与河景间形成视觉通廊。沿西侧城市绿带和白河景视野布置边厅观景户型,充分利用白河和绿化景观资源。
在住区内规划南北景观轴线,串联由楼宇错位围合出的组团景观空间,居民既可远眺白河澄波,又能凭栏俯瞰园林风光,还可随性漫步空中庭院,实现全方位沉浸式的生态居住体验。

△ 景观分析示意


在金沙东院(已建成丨河南商丘,设计时间:2021年)项目中,除了通过楼宇的错位布置形成四个合院空间外,还在四代住宅楼栋位置规划独特的下沉式“枯山水”庭院,构建出 “一核心四院落”的空间格局,从室内到室外,从楼上到地下,景观的垂直渗透让自然生态的人景交互体验流动、连续,可行、可望、可游、可居。

此外,四代住宅的形式也更加多样,在传统四代住宅的基础上,结合市场需求与常规住宅产品进行融合,并围绕住宅所在的气候特色、客群定位、楼栋区位、产品去化等需求进行灵活的产品配比,衍生出普通住宅与四代住宅混建的项目形式,以提高项目的整体竞争力、差异性和品质感。

作为近几年备受关注的创新产品,四代住宅的采光优化、隐私防护及功能实用性等核心痛点成为行业共同探索的课题。
我们可以看到,随着设计技术的进化和产品的内卷式升级,四代住宅的弊端与优势此消彼长,其绿色、舒适、适变、得房率高等贴近真实生活需求的核心价值被不断激活。设计驱动下,四代住宅的产品力进一步觉醒。

△ 凤麟·天阙 效果图
在空间功能性方面,相比以生态效能与健康生活为初衷的国外四代住宅,国内的四代住宅则更强调空间增值与生活场景延伸。设计关注“大庭院”、“大露台”和室内核心功能区的互动,实现功能与场景的动态、合理渗透:室内活动自然延伸至露台,模糊边界,并激发空间功能的多元复合;在居住舒适性方面,通过花园露台的布置方位、空间组合逻辑,解决采光、空间私密性等问题。
在凤麟·天阙(建设中丨河北邢台,设计时间:2024年)项目的四代住宅楼栋中,均采用LDKG+1社交巨厅设计。社交客厅、多样餐厨、多功能阳台与可变空间共同构成家庭共享中心,适配多样化、成长性的家庭生活场景。通过结构的有效控制,实现6.6m通高无梁的内部空间,最大化实现客餐厅区域的通透感;外部通过结构悬挑实现局部近8m的阳台无柱空间,突破常规阳台尺度。以下图为例,户型拥有约77㎡挑空边厅,实际得房率约113%。


X空间满足居民不同生活阶段的个性化、定制化空间需求,同向露台间隔4个开间,纵向采用挑檐进行视线遮挡,提高露台私密性。

△ 凤麟·天阙 效果图


△ 金沙东院 户型分析
茂源凤栖今朝(建设中丨安徽六安,设计时间:2024年)在主要湖景楼栋通过叠加、错位打造错层挑空空中庭院,实现客厅约6.3m阔景挑高。户型结合规划争取极致大面宽、大开间设计,打造最大约8.6m*7.8m通透巨厅,端厅实现270°多景观面导向的观景视野,综合升维居住体验。
建
筑
△ 茂源凤栖今朝 户型分析




以定制化设计塑造多样化的建筑审美,以精细化设计提升住宅品质感,形成同时满足城市界面融合的、具有市场化、领先性、时代性、艺术性的住宅界面。
水院云居(建设中丨浙江宁波,设计时间:2024年)在立面设计和材料选择上,用更为洗练和现代的建筑语汇传达具有江南意蕴的生活气质。通过设计重构,将重檐意向与斗拱元素重新演绎,材料上通过专属定制的大象灰色铝板与仿木纹铝板结合,赋予建筑木构文化的深厚底蕴的同时,公建化的直线勾勒出建筑的简约现代感。

珑水云墅(建设中丨河南驻马店,设计时间:2022年)立面造型结合花园露台的层层错台分布,形成曲直交错的建筑线条,建筑造型流畅舒展;恰到好处的挑檐曲线增加建筑的流线型和韵律感,露台植被与大面积的落地窗模糊室内外、建筑与自然的边界。

金沙东院的立面造型采用理性、极简的设计风格,精致纤细的建筑线条,收头、分缝等精致的细节赋予建筑独有的风格。运用写意的手法设计具有中式韵味的“坡屋顶”,大面积玻璃幕墙和亚光银灰色铝板的搭配提升建筑整体的通透度,消隐建筑与环境景观的割裂感;同时,让建筑的视觉效果更加轻盈、流畅。
空中庭院增加造型结合设计的标准化节点,玻璃栏板下以浅色铝板和精工线条镶边,通过不同色彩、材料、工艺的运用,保证纤细横向线条贯通,让外立面横线条精致纤细的视觉效果得以延续,整个项目的立面风格得到统一。




当前,国家高度重视“好房子”建设,并着力促进房地产市场的止跌回稳。四代住宅以其在溢价空间、产品去化、品牌效应等方面的明显优势,为行业产品迭代提供了更多选择。
徐辉设计基于多年来的未来住宅发展研究积淀,成为四代住宅设计先行者。自2021年起已在河南、安徽、山东、河北、浙江等多个省市完成近20个四代住宅项目的设计实践,并长期进行四代住宅产品价值体系研究。未来,也将持续开展以“好房子”为标准的四代住宅设计研发,以设计赋能,与合作伙伴共同助力人居产品升级,推动行业健康发展。